
Klassische Altbauwohnung in Berlin-Friedenau: Kapitalanlage mit Perspektive
Objektangaben
Kosten
Beliebte Wohnlage mit exzellenter Infrastruktur – ideal zur Vermietung oder späteren Eigennutzung
Sie möchten eine Eigentumswohnung in Berlin-Friedenau kaufen, die sich sowohl zur Kapitalanlage als auch zur späteren Eigennutzung eignet? Diese gepflegte Altbauwohnung im charmanten Friedenau überzeugt durch eine erstklassige Mikrolage direkt an der Grenze zu Wilmersdorf mit exzellenter Infrastruktur, Kiezcharakter und stabiler Wertentwicklung. Ein Standort, der heute wie morgen begeistert!
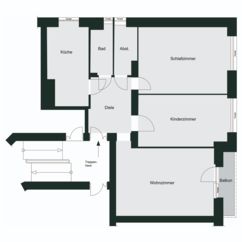
Diese attraktive 3-Zimmer-Eigentumswohnung im ersten Obergeschoss eines repräsentativen Berliner Altbaus (Baujahr ca. 1906) bietet rund 85,5 m² Wohnfläche und verbindet klassischen Altbaucharme mit modernem Wohncharakter. Die Wohnung verfügt über drei gut geschnittene Zimmer, eine separate Küche, ein Tageslichtbad sowie einen praktischen Abstellraum. Ein kleiner Balkon öffnet das Wohnzimmer nach draußen und bietet zusätzlichen Platz für Grün- und Blühpflanzen. Das sehr gepflegte Treppenhaus mit typischen Altbauelementen und die imposante Deckenhöhe der Wohnräume von ca. 3,20 m unterstreichen den besonderen Charakter des Objekts, der begrünte Innenhof mit Fahrradstellplätzen komplettiert das Angebot. Ideal für Paare oder kleine Familien, die eine familienfreundliche Wohnlage inmitten der Großstadt suchen.
Die Wohnung ist derzeit vermietet und eignet sich als Kapitalanlage mit langfristiger Perspektive für Eigennutzer. Für die Wohnung ist ein Wohnungsrecht im Grundbuch eingetragen. Für einen persönlichen Eindruck im Rahmen einer Besichtigung sprechen Sie uns gerne an.
AUF EINEN BLICK:
- 3-Zimmer-Eigentumswohnung mit ca. 85,5 m² Wohnfläche
- 1. OG im repräsentativen Berliner Altbau
- Hohe Decken mit Stuckelementen
- Gepflegtes Tageslichtbad mit Wanne
- Balkon
- Begrünter Innenhof mit Fahrradstellplätzen
- Teilsanierung von Dach, Fassade, Fenstern und Treppenhaus
- Gefragte Lage in Berlin-Friedenau mit sehr guter Infrastruktur und Anbindung
Wer eine Eigentumswohnung in Berlin-Friedenau kaufen möchte, trifft mit dieser Immobilie eine zukunftssichere Wahl. Inmitten eines der begehrtesten Kieze der Hauptstadt bietet die Lage ein hohes Maß an Wohnqualität, eine ausgezeichneter Anbindung und ein solides Wertsteigerungspotenzial.
Denn Friedenau gilt als einer der charmantesten Ortsteile Berlins. Die Gegend besticht durch ihre gewachsene Struktur, gepflegte Altbauten und ein ruhiges, beinahe dörfliches Flair – ohne auf urbanen Komfort verzichten zu müssen. Zahlreiche Cafés, kleine Galerien, individuelle Boutiquen und lokale Märkte prägen das Bild und sorgen für eine hohe Lebensqualität, die sowohl Eigennutzer als auch Mieter langfristig schätzen.
Die Verkehrsanbindung ist exzellent: In fußläufiger Entfernung befinden sich U- und S-Bahnstationen sowie Buslinien, die eine schnelle Verbindung in alle Teile der Stadt ermöglichen. Die Nähe zum Stadtring A100 sorgt zudem für eine gute Erreichbarkeit per PKW – ein klarer Pluspunkt für Pendler.
Auch infrastrukturell ist die Mikrolage hervorragend aufgestellt: Kitas, Schulen, ärztliche Versorgung und Einkaufsmöglichkeiten sind bequem erreichbar. Die Umgebung ist besonders familienfreundlich, was die Nachfrage nach Wohnraum in diesem Segment zusätzlich stabilisiert – ein Vorteil für Kapitalanleger mit langfristiger Perspektive.
Die Kombination aus ruhiger Lage mit Kiezcharakter, urbaner Vielfalt und der unmittelbaren Nähe zu zentralen Berliner Stadtteilen macht diese Immobilie zu einem überzeugenden Investment. Egal, ob Sie vermieten oder später selbst einziehen möchten: Diese Eigentumswohnung in Berlin-Friedenau vereint Wohnwert mit wirtschaftlicher Weitsicht.
Die Wohnung befindet sich in einem gepflegten Altbau aus dem Jahr 1906, der in den vergangenen Jahren kontinuierlich modernisiert wurde. So wurden unter anderem die Dacheindeckung, der Fassadenanstrich, die Fenster sowie die Treppenhäuser erneuert und instand gesetzt.
Die Wohnung überzeugt mit einer praktischen Raumaufteilung und verfügt über eine zweckmäßige Innenausstattung. Die Bodenbeläge bestehen aus Laminat, Fliesen und Vinyl, die Fenster mit Kunststoffrahmen und Isolierverglasung wurden ca. 2015 neu eingebaut. Das Badezimmer ist mit Badewanne sowie raumhoch gefliesten Wänden ausgestattet. Besonders hervorzuheben sind die für Altbauten typischen hohen Decken mit vereinzelten Stuckelementen, die der Wohnung ihren klassischen Altbaucharakter verleihen. Der straßenseitig gelegene Balkon mit ca. vier Quadratmetern ergänzt den Wohnbereich. Heizung und Warmwasserversorgung werden durch den Anschluss an das Fernwärmenetz Berlins sichergestellt.
PROVISIONSHINWEIS:
Diese Immobilie ist provisionspflichtig. Sie wird vom Käufer in Höhe von 3,57 % inkl. MwSt. getragen und ist verdient und zahlbar an den Nachweis-/Vermittlungsmakler bei Kaufvertragsabschluss. Eine Provision wird nur fällig, wenn es zu einem Nachweis oder einer Vermittlung einer Gelegenheit zum Abschluss eines Hauptvertrages kommt. Wir haben mit dem Verkäufer einen provisionspflichtigen Maklervertrag in gleicher Höhe abgeschlossen.
HAFTUNGSAUSSCHLUSS:
Alle Angaben, insbesondere die Angabe zum Baujahr, stammen vom Verkäufer und wurden von uns nur stichpunktartig überprüft. Eine Haftung für diese Angaben schließen wir damit generell aus. Wir empfehlen ein eigenes Baujahr-Gutachten.
KI - Anwendungen
Das Exposé wurde unter Verwendung KI-gestützter Anwendungen erstellt.
Die mit "Visualisierung" gekennzeichneten Fotos wurden mithilfe von KI anonymisiert. Abweichungen vom Ist-Zustand der Immobilie sind auf diesen Fotos möglich.
Energieausweis
Besichtigungstermin
