
Große Doppelhaushälfte mit Potenzial und 604 m² Grundstück in Berlin-Pankow - ideal für Familien
Objektangaben
Kosten
Viel Platz für Familie und Hobbys: Große Doppelhaushälfte mit weitläufigem Grundstück, ausbaufähigem Dachgeschoss in ruhiger Wohnlage von Berlin-Französisch Buchholz. Viele Möglichkeiten für alle, die Raum brauchen und Ideen haben!
Dieses schöne Einfamilienhaus in Französisch Buchholz ist wie eine leere Leinwand: die Grundlage für Ihre individuellen Gestaltungswünsche. Die großzügige Doppelhaushälfte aus dem Jahr 1934 liegt eingebettet in ein ruhiges, grünes, gewachsenes Wohnviertel in Berlin Pankow (Ortsteil Französisch Buchholz). Der erste Eindruck? Vielversprechend. Der zweite? Da steckt richtig Potenzial drin!
Die Sonne lässt die nach Westen orientierten Wohnräume leuchten, die Dielenfußböden sorgen für Behaglichkeit und zwischen den vielen Räumlichkeiten kann man sich tatsächlich fast verlieren. Und draußen? Ein Grundstück wie gemacht für eine große Familie, für Haustiere, für ausgiebiges Spielen und Toben, für lange Sommerabende mit Familie und Freunden. 604 Quadratmeter Grundstück und fast 124 Quadratmeter Wohnfläche geben Ihnen viel Raum zum Spielen, Gärtnern, Entspannen - und zum Gestalten.
Das Haus bietet zudem ein ausbaufähiges Dachgeschoss sowie eine Aufteilung der Wohnräume, die sich flexibel an Ihre Ideen und Bedürfnisse anpassen lässt. Ob Familienleben in großen, offenen Räumlichkeiten oder kreative, kleinere Rückzugsorte mit Homeoffice und Lesezimmer: In diesem Haus ist alles denkbar. Für alle, die mehr wollen als Standard und ein Zuhause suchen, das sich an besondere Bedürfnisse und Wünsche anpassen lässt.
Kontaktieren Sie uns gerne für weitere Informationen oder zur Vereinbarung eines Besichtigungstermins – wir freuen uns auf Ihre Nachricht.
Grün, ruhig, familiär - willkommen in Französisch Buchholz!
Die Doppelhaushälfte liegt in einer angenehm ruhigen Anwohnerstraße im grünen Norden Pankows, mitten im beliebten Ortsteil Französisch Buchholz. Hier zeigt sich Berlin von seiner entspannten und familienfreundlichen Seite: kleine Straßen, viel Natur und eine Nachbarschaft, in der Kinder aufwachsen und Erwachsene zur Ruhe kommen können.
Das Stadtbild ist geprägt von gepflegten Einfamilienhäusern mit Vorgärten, alten Bäumen und großzügigen Grundstücken - ein Wohnumfeld, das Freundlichkeit und Geborgenheit ausstrahlt. Der historische Dorfkern mit der über 700 Jahre alten Kirche ist nur wenige Minuten entfernt. Dort finden sich Einkaufsmöglichkeiten und Wochenmärkte und alles für den täglichen Bedarf.
Trotz der ruhigen Lage ist man hier bestens angebunden: Mit Bus und Bahn kommen Sie bequem ins Berliner Zentrum, und auch die nahegelegene Autobahnauffahrt sorgt für flexible Wege - ob zur Arbeit oder ins Umland fürs Wochenende.
Für Familien ist Französisch Buchholz ein kleines Paradies. Das Naturschutzgebiet Karower Teiche liegt fast vor der Tür und lädt zu Spaziergängen, Joggingrunden oder kleinen Entdeckungsreisen mit den Kindern ein. Schulen, Kitas, Spielplätze, Sportvereine und Freizeitangebote sind zahlreich vorhanden und gut erreichbar - kurze Wege, viele Möglichkeiten. Wer ein Zuhause sucht, das städtische Nähe mit ländlicher Ruhe vereint, wird sich hier schnell zuhause fühlen.
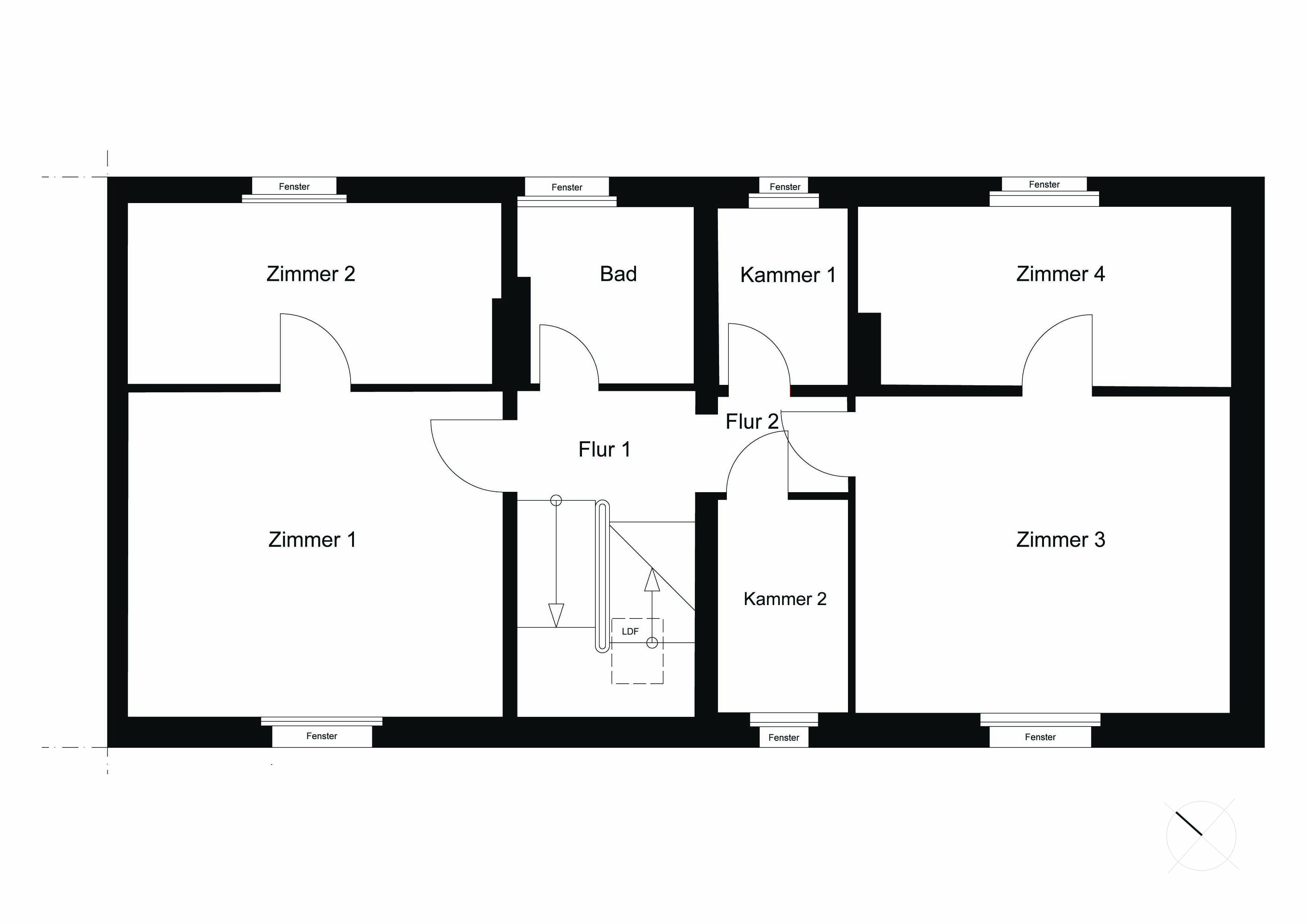
Solide Substanz trifft auf echtes Potenzial: Dieses massiv gebaute Haus bietet mit seiner außergewöhnlichen Grundrisslösung jede Menge Spielraum für Sie und Ihre Familie. Mit seinen vielen Zimmern, dem nicht ausgebauten Dachgeschoss und dem großen, freien Grundstück hinter dem Haus bietet es ideale Voraussetzungen für Menschen, die nicht nur einziehen, sondern ihr neues Zuhause nach eigenen Vorstellungen gestalten wollen. Ob Großfamilie oder Hobbys, die viel Raum beanspruchen - hier finden Sie ein Zuhause, das zu Ihrem Leben und zu Ihren Träumen passt.
AUF EINEN BLICK:
- Wohnfläche mit ca. 123,9 m²
- ausbaubares Dachgeschoss mit ca. 66 m² Grundfläche
- Grundstück mit ca. 604 m²
- 4 Wohnräume plus 3 kleinere Räume (je ca. 8,5 m²)
- Tageslichtbad
- Geräteschuppen (ca. 20 m² Nutzfläche, massiv) sowie Außenstellplätze für PKW
- Ca. 1990: Erneuerung der Dacheindeckung
- Ca. 2000: Erneuerung der Fenster und vollständige Dämmung der Fassade
- Ca. 2015: Modernisierung der Heizungsanlage (Gas-Zentralheizung)
Die Immobilie ist mit zweifach verglasten Kunststofffenstern ausgestattet, die im Erdgeschoss über zusätzliche Fensterläden verfügen. Der Kachelofen kann nach entsprechender Zulassung als Ergänzung des Heizsystems genutzt werden. Das Badezimmer verfügt über eine Badewanne, ein Fenster für natürliche Belüftung und eine einfache, funktionale Ausstattung.
Die Doppelhaushälfte ist nicht unterkellert, sondern verfügt über ein Souterrain, in dem Wohnräume, Küche, Heizungsraum und Abstellräume untergebracht sind. Der Zugang zum hinteren Garten ist über das Souterrain möglich.
PROVISIONSHINWEIS:
Diese Immobilie ist provisionspflichtig. Sie wird vom Käufer in Höhe von 3,57 % inkl. MwSt. getragen und ist verdient und zahlbar an den Nachweis-/Vermittlungsmakler bei Kaufvertragsabschluss. Eine Provision wird nur fällig, wenn es zu einem Nachweis oder einer Vermittlung einer Gelegenheit zum Abschluss eines Hauptvertrages kommt. Wir haben mit dem Verkäufer einen provisionspflichtigen Maklervertrag in gleicher Höhe abgeschlossen.
HAFTUNGSAUSSCHLUSS:
Alle Angaben, insbesondere die Angabe zum Baujahr, stammen vom Verkäufer und wurden von uns nur stichpunktartig überprüft. Eine Haftung für diese Angaben schließen wir damit generell aus. Wir empfehlen ein eigenes Baujahr-Gutachten.
KI-ANWENDUNGEN:
Das Exposé wurde unter Verwendung KI-gestützter Anwendungen erstellt. Die mit "Visualisierung" gekennzeichneten Fotos wurden mithilfe von KI bearbeitet. Abweichungen vom Ist-Zustand der Immobilie sind auf diesen Fotos möglich.
Energieausweis
Besichtigungstermin

360°-Rundgang
Schauen Sie sich die Immobilie im virtuellen Rundgang an!