Schöne Altbauwohnung mit Dachterrasse + Dachrohling in Berlin Schöneberg (Friedenau)
Objektangaben
Kosten
Stellen Sie sich vor: Eine exklusive Dachgeschosswohnung mit privater Dachterrasse und einem atemberaubenden Blick über die Dächer Berlins in einer der gefragtesten Wohngegenden Berlins! Genau das bietet Ihnen diese wunderschöne Altbauwohnung in Friedenau. Aber mehr noch, denn zur Wohnung gehört außerdem noch ein ca. 171 m² großer Dachrohling. Interesse geweckt? Dann kontaktieren Sie uns für einen Besichtigungstermin!
HIGHLIGHTS:
• Helle und großzügige Wohnräume
• Sonnige, private Dachterrasse mit Blick in den Innenhof
• Phantastischer Ausblick
• Begehrte Berliner Wohngegend
• Teilsaniert und sehr gepflegt (letzte Modernisierung ca. 2010)
Der Charme des Berliner Altbaus spiegelt sich in den alten Dielenfußböden, hübschen kleinen Fenstern zum Lichthof hin und in den vielen liebevollen Details des Gebäudes wider. Wer das Besondere eines Altbaus und den Luxus einer Dachgeschosswohnung sucht, wird hier fündig! Die Holzbalkenkonstruktion des Dachstuhls wurde zum Teil sichtbar in die Wohnräume integriert, was das Ambiente der Wohnung noch einmal unterstreicht. Die Ausrichtung der Wohnräume nach Ost und West bringt viel Licht in die Wohnräume. Die zum Innenhof gelegene Dachterrasse verspricht ruhige und sonnige Stunden hoch oben über den Dächern Berlins. Eine Wohn-Oase zum Verlieben!
ECKDATEN:
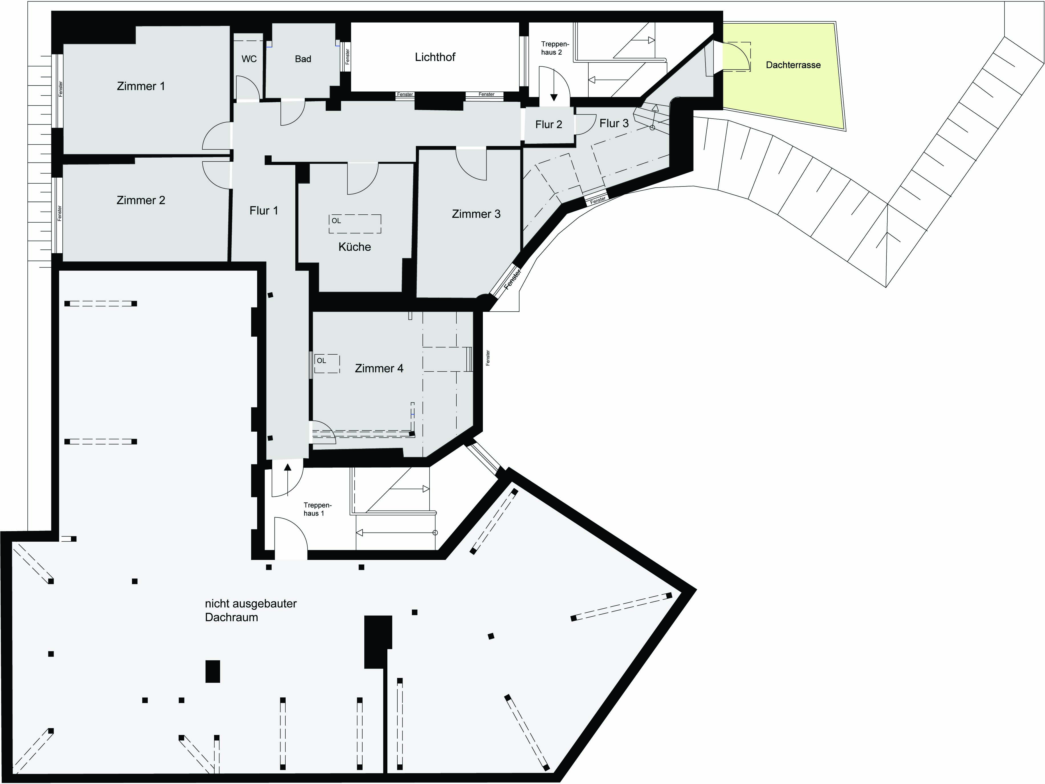
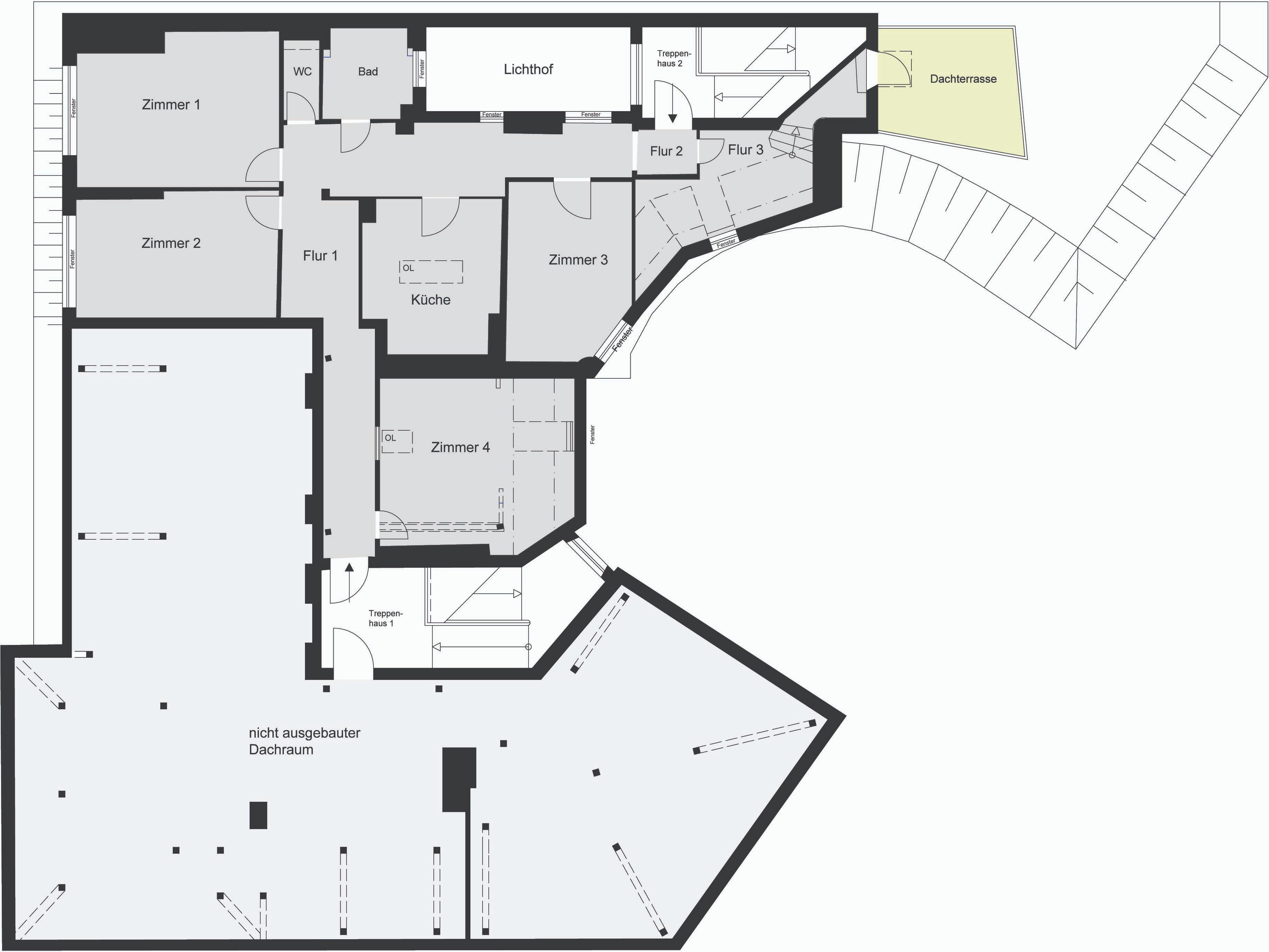
• Dachgeschosswohnung mit Dachterrasse
• ca. 117,7 m² Wohnfläche
• 4 Zimmer + 1 Durchgangszimmer/Flur
• Bad mit Badewanne und Fenster
• modernisiertes Gäste-WC
• bezugsfertig / sofort vermietbar
Das Gebäude, in dem sich die Wohnung befindet, wurde im Jahr 2000 umfassend saniert und ist in einem sehr guten Zustand. Die letzte Modernisierung, Sanierung der zwei Treppenhäuser, fand im Jahr 2022 statt.
ECKDATEN GEBÄUDE:
• gute bis sehr gute Wohnlange
• 5 Etagen mit Teilunterkellerung (Aufzug nicht vorhanden)
• Baujahr ca. 1906
• teilsanierter Altbau mit grünem Innenhof, letzte Modernisierung 2020 (Treppenhaus)
Zusammen mit der Wohnung wird ein Dachrohling verkauft, der auf gleicher Geschossebene über den Flur des Treppenhauses zugänglich ist. Der Dachrohling ist nicht ausgebaut und wird als Nutzfläche mit einer Grundfläche von ca. 171 m² angeboten. Eine Nutzung als Lagerfläche ist unter Beachtung von Brandschutzauflagen möglich. Eine Baugenehmigung liegt nicht vor.
Interessant kann der Dachrohling werden für diejenigen, die zusätzliche Staufläche z. B. als Keller-Ersatz benötigen oder Lagerflächen suchen für platzintensive Hobbys.
DACHROHLING:
• Grundfläche: ca. 171 m²
• Art der Immobilie: Dachrohling im Teileigentum
• genehmigte Nutzung lt. Teilungserklärung: Lagerräume
• Wohngeld: wird aktuell nicht in der Abrechnung berücksichtigt
• Zugang zur Dachgeschosswohnung auf gleicher Ebene
Nutzen Sie diese seltene Gelegenheit und sichern Sie sich eine exklusive Immobilie in einer der begehrtesten Lagen Berlins! Kontaktieren Sie uns noch heute für weitere Informationen oder eine Einzelbesichtigung.
Friedenau ist ein malerischer Ortsteil im Berliner Bezirk Tempelhof-Schöneberg, der die Ruhe und Beschaulichkeit einer Kleinstadt mit den Annehmlichkeiten und der Vielfalt einer Großstadt verbindet.
Direkt angrenzend an Wilmersdorf bietet Friedenau seinen Bewohnern eine große kulturelle Vielfalt, grüne Straßen mit gut erhaltenen Altbauten und gepflegten Parkanlagen, erstklassige Schulen und Kindergärten sowie verschiedene Einkaufsmöglichkeiten und Gastronomiebetriebe. Alles zusammen bietet eine hohe Lebensqualität und damit Zufriedenheit der Menschen, die hier leben. Und all das trägt dazu bei, dass Friedenau seit Langem eine der begehrtesten Wohngegenden Berlins ist.
Die Umgebung der Wohnung besticht durch prachtvolle Gründerzeitbauten, verwinkelte Straßen und ein lebendiges Kiez-Leben. Einladende Cafés, stilvolle Boutiquen, inspirierende Kunstgalerien und charmante Wochenmärkte schaffen eine unverwechselbare Atmosphäre. Ob Kreative, Akademiker oder Kosmopoliten – hier fühlt man sich zu Hause.
Die soziale Struktur ist geprägt von einem hohen Bildungsniveau und einer starken Gemeinschaft, die sich in zahlreichen Nachbarschaftsinitiativen und lokalen Vereinen widerspiegelt.
Auch die kulturelle Szene in Friedenau ist lebendig und facettenreich. Der Stadtteil beherbergt zahlreiche Galerien, Buchläden und Theater, die regelmäßig kulturelle Veranstaltungen und Ausstellungen organisieren. Besonders erwähnenswert ist die Friedenauer Künstlerkolonie, die bereits im 19. Jahrhundert viele namhafte Künstler und Schriftsteller anzog. Und auch heute noch ist das Viertel ein kreativer Hotspot in Berlin.
Neben dem besonderen Flair, das Wohnung und Wohngegend mitbringen, punktet diese Wohnung auch mit einer erstklassigen Anbindung an die Infrastruktur. Die S-Bahn-Station Friedenau und die U-Bahn Walther-Schreiber-Platz sind in wenigen Minuten zu Fuß erreichbar. Von dort aus gelangen Sie in nur 10 bis 15 Minuten zum Kurfürstendamm, Potsdamer Platz oder mitten in die pulsierende City. Autofahrer profitieren von der schnellen Anbindung an die Stadtautobahn A100.
Die Dachgeschosswohnung verfügt über vier Zimmer, ein Badezimmer mit Badewanne, ein Gäste-WC sowie zwei großzügige Flurbereiche. Des Weiteren gibt es einen großen Küchenraum mit Oberlicht, das geöffnet werden kann, sodass auch hier für Tageslicht und Frischluft gesorgt ist. Ein Durchgangsraum zur Dachterrasse kann als zusätzliches kleines Zimmer oder dritter Flurbereich genutzt werden.
Die Dachterrasse ist über eine kleine Treppe direkt von der Wohnung aus zugänglich. Von hier aus haben Sie einen umwerfenden Blick auf die Dächer Berlins und in den Innenhof der Immobilie.
In den Fluren sowie in den Wohnräumen (Zimmer 1, 2, 4) sind - ganz Berliner Altbau-Stil - Holzdielen vorhanden. Bei den Fenstern handelt es sich überwiegend um zweifach verglaste Kunststofffenster, die zum Teil mit Jalousien ausgestattet sind. Das Oberlicht in Zimmer 4 kann elektrisch geöffnet werden.
WEITERGEHENDE INFORMATIONEN ZUR IMMOBILIE
Die Wohnung wird nur in Kombination mit dem Dachrohling verkauft und ist diesem als Sondernutzungsrecht zugeordnet. Der Ausbau der Flächen im Sondernutzungsrecht zu Wohnzwecken ist genehmigt, die Wohnnutzung des Sondernutzungsrechts inklusive Teilflächen des Dachrohlings besteht seit ca. 11 Jahren (Teile des Dachrohlings wurden der Fläche der Wohnung im Rahmen des Ausbaus aus brandschutzrechtlichen Gründen zugeschlagen.).
Die Bodenräume (Dachrohling) sind von der WEG derzeit per Beschluss von der Nutzung ausgeschlossen. Eine spätere Nutzung als Abstell-/Lagerfläche setzt eine Aufhebung dieses Beschlusses sowie einen bauaufsichtlich genehmigten Brandschutznachweis voraus.
MIETSPIEGEL BERLIN
Die Immobilie ist bezugsfrei und sofort verfügbar. Laut Berliner Mietspiegel 2024 beträgt die ortsübliche Vergleichsmiete (NKM) durchschnittlich 8,13 €/m² (Werte von 6,14 € bis 11,97 €).
PROVISIONSHINWEIS
Diese Immobilie ist provisionspflichtig. Sie wird vom Käufer in Höhe von 3,57 % inkl. MwSt. (privater Käufer) bzw. in Höhe von 7,14 % inkl. MwSt. (gewerblicher Käufer) getragen und ist verdient und zahlbar an den Nachweis-/Vermittlungsmakler bei Kaufvertragsabschluss. Eine Provision wird nur fällig, wenn es zu einem Nachweis oder einer Vermittlung einer Gelegenheit zum Abschluss eines Hauptvertrages kommt. Wir haben mit dem Verkäufer einen provisionspflichtigen Maklervertrag in gleicher Höhe abgeschlossen (paritätische Kostenteilung im Falle des Verkaufs an einen privaten Käufer).
HAFTUNGSAUSSCHLUSS
Die in diesem Exposé enthaltenen Angaben beruhen auf Informationen des Eigentümers, der Hausverwaltung sowie öffentlich zugänglichen Quellen. Diese Angaben wurden von uns nur stichpunktartig überprüft, sodass wir eine Haftung dafür generell ausschließen. Eine Einsicht in die Bauakte insbesondere hinsichtlich des Baujahres erfolgte nicht. Trotz sorgfältiger Prüfung übernehmen wir für die Richtigkeit, Vollständigkeit und Aktualität der Angaben in diesem Exposé keine Gewähr. Eine Haftung ist ausgeschlossen, soweit nicht Vorsatz oder grobe Fahrlässigkeit vorliegen.
Alle wirtschaftlichen, baurechtlichen und genehmigungsrechtlichen Angaben, insbesondere zur Nutzung, Entwicklung oder Vermietung des Dachrohlings, dienen ausschließlich der unverbindlichen Information. Für die baurechtliche oder wirtschaftliche Realisierbarkeit übernehmen wir keine Haftung. Eine eigenverantwortliche Prüfung durch Architekten, Juristen, Steuerberater und andere Fachleute wird ausdrücklich empfohlen.
Änderungen und Zwischenverkauf bleiben vorbehalten.
Energieausweis
Besichtigungstermin
360°-Rundgang
Schauen Sie sich die Immobilie im virtuellen Rundgang an!
